Separador Chapas Superior Externo – EX

Separador Chapas Superior Externo – EX

Categorias: , Tag:
Loading...
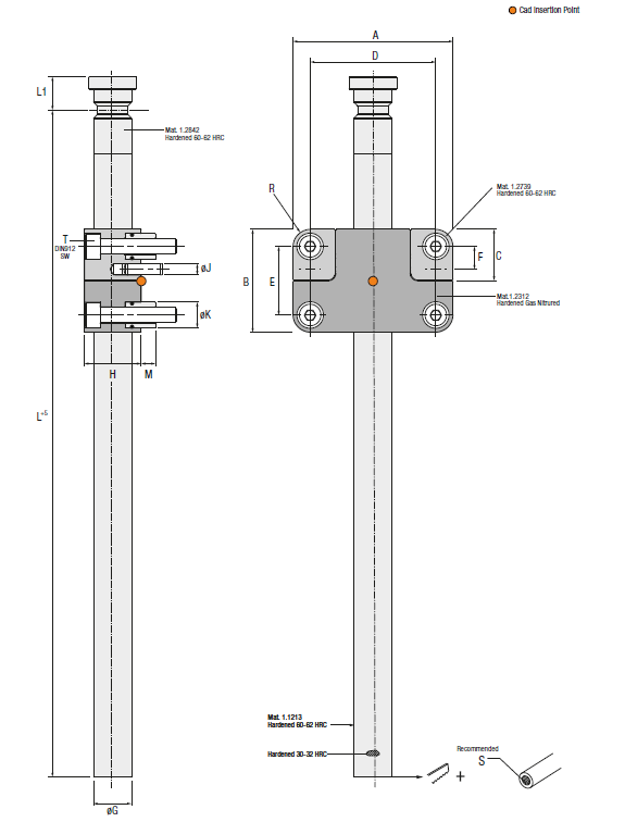
EX_CUM_COTAS

Tabela de dimensões

* Na tabela abaixo, na última coluna sem título, quando ocorrer; arquivo compactado com desenhos técnicos.

Ref.ABCDEFGHJKLL1MRST
EX.1406006240204826914224X14 (DIN6325)10,5348135,57,2M8M6X30
EX.200800845427663612203010X30 (DIN7979)13,534817,57,59,2M128X40
EX.32120012684421026020324610X30 (DIN7979)18,55302711,512,5M16M12X65
EX.501600174120601408626506412X40 (DIN7979)255304015,517M24M16X90

Descrição

Descrição:

Duas opções distintas: Como sistema de pré-abertura, controla a abertura de uma zona antes da abertura na linha de junta, ou dupla extração, durante o movimento de extração, controlamos a paragem de um dos conjuntos de chapas.
Instalação externa de fácil afinação e manutenção.

Marca

Cumsa